Nur für Gewerbetreibende

Abbildung ähnlich
TOPFORM

TOPFORM Schiebetürbeschlag Nimos - Aluminium schwarz - für Holztüren - 60 kg Tragkraft - mit Dämpfung

TOP672-88 4048436218916 218916
auf Anfrage
je 1 Set
keine Verfügbarkeitsinformationen

Verpackungseinheiten

1 Set

Verkaufsdaten

Mindestbestellmenge 1 Set
Bestellschritt 1 Set

Beschreibung

TOPFORM Schiebet Nimos - Aluminium schwarz - für Holztüren - 60 kg Tragkraft - mit Dämpfung

Lieferumfang

  • 2 Stück Laufwagen inkl. Klemmplatten
  • 2 Stück Safe Close - Mitnehmer mit Schrauben und Filz, Gummihülse (Luftdruckdämpfer)
  • 2 Stück Safe Close Dämpfer
  • 2 Stück Safe Close Sicherheitsstopper
  • 2000 mm Laufschiene
  • 2000 mm Abdeckprofil
  • 2 Stück Endstopper
  • 1 Paar Endkappen inkl. Schrauben
  • 1 Stück Bodenführung für Holztüren
  • 2 Stück Holz- Klemmbacken mit Rampa-Muffe

Merkmale

Ausführung schwarz
Dämpfung vorhanden ja
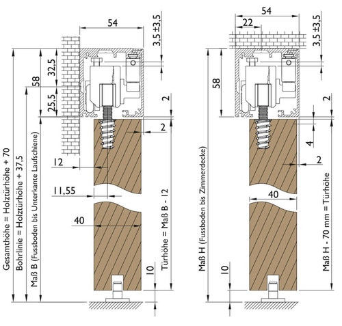
für Türmaterial Holztür
Glasstärke 8-10 mm
Material Aluminium
Montage für Wand- und Deckenmontage, Glastüren werden geklemmt
Oberfläche schwarz
Tragkraft 60 kg
WhatsApp
Mail
Anrufen