Nur für Gewerbetreibende

Abbildung ähnlich
Hettich

HETTICH Vollauszug Kugelauszug KA 4532-Set - links/rechts - Seitenmontage - 12,7 mm Einbaubreite - Silent System - 35 kg - 300 mm

4023149601149 4023149601149 9114271
auf Anfrage
je 100 Ga
keine Verfügbarkeitsinformationen

Verpackungseinheiten

10 Ga

Verkaufsdaten

Mindestbestellmenge 1 Ga
Bestellschritt 1 Ga

Zubehörempfehlung für Sie:

Hettich

HETTICH Anschlagdämpfer zum Aufkleben 4023149466953

Hettich

HETTICH Endschraube, M4 x 9 4023149795275

Beschreibung

Eigenschaften:

  • Vollauszug mit integrierter Dämpfung Silent System
  • Entriegelungshebel zur Schnelltrennung des Schubkastens vom Korpus
  • Leichter Lauf und hohe Seitenstabilität durch exakte Führung
  • Für Bodenvarianten genutet, gefälzt oder bündig
  • Belastbarkeit nach EN 15338, Level 2
  • Stahl verzinkt, blau passiviert
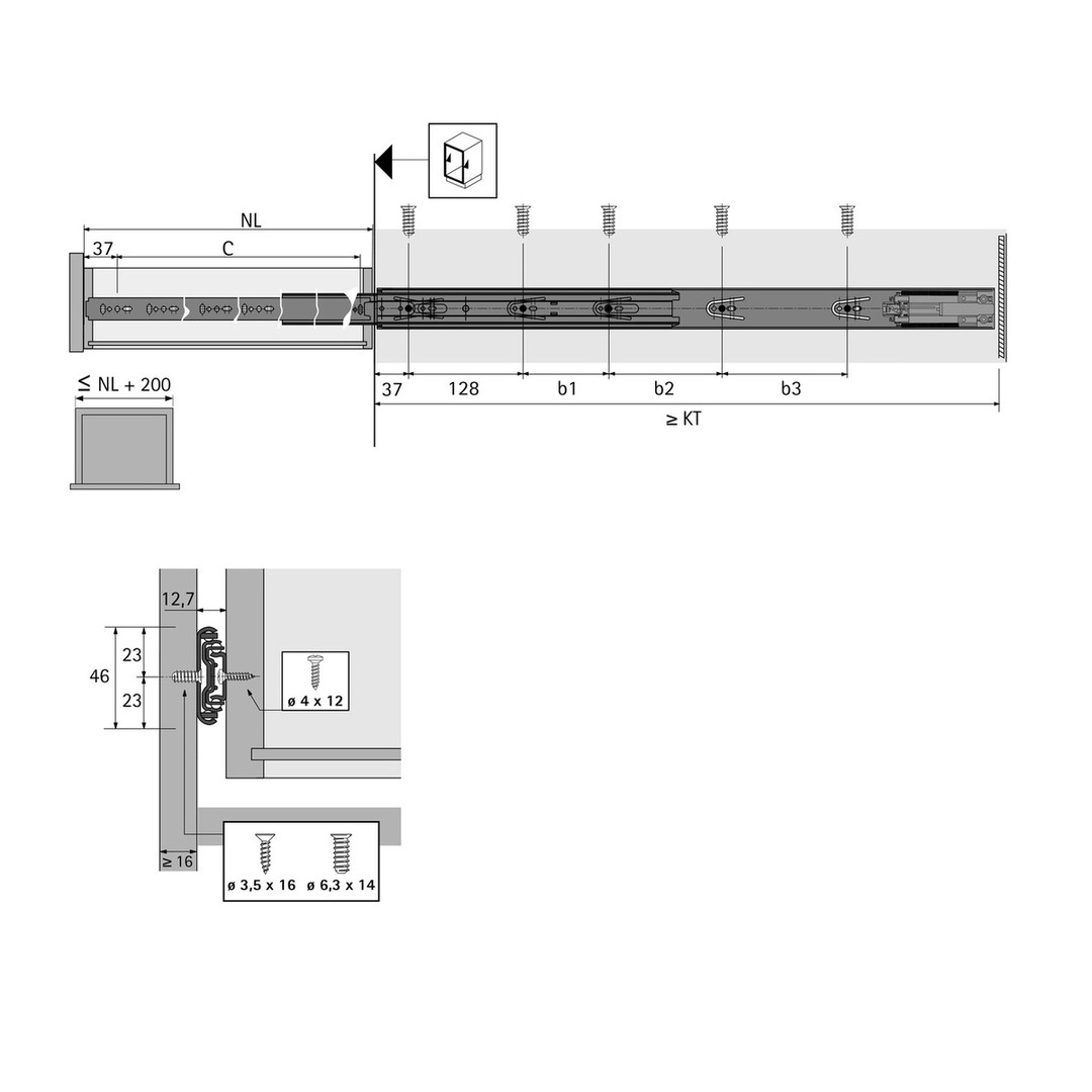
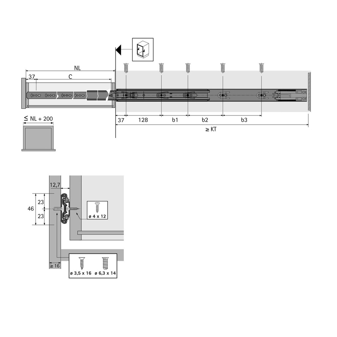
  • Bei Nennlänge 300 beträgt der Auszugsweg nur 290 mm

Merkmale

Montageart Seitenmontage
Anschlagseite links und rechts
Führungsart Sichtbare Führung
Komforteigenschaften Silent System
Komponenten Auszugsführungen
Mindestkorpustiefe KT 304 mm
Nennlänge 300 mm
Belastungsklasse 35 kg
Auszugsart Vollauszug
Einbaubreite / Korpusseitendicke EB 12,7 (Korpusseitendicke 16 mm)
Lochabstand C 171 mm
Farbe blau passiviert
WhatsApp
Mail
Anrufen