Nur für Gewerbetreibende

Wir haben vom 24.12. bis 02.01.2026 geschlossen - Shop-Bestellungen werden ab dem 05.01.2026 wieder bearbeitet.

Abbildung ähnlich
HECO

HECO MultiMonti TC TimberConnect MMS-TC - TX45 - Vollgewinde - verzinkt - Senkkopf - 10x130 mm

HEC020-1013 4019787483100 48310
auf Anfrage
je 100 St
keine Verfügbarkeitsinformationen

Verpackungseinheiten

25 St

Verkaufsdaten

Mindestbestellmenge 25 St
Bestellschritt 1 St

Zubehörempfehlung für Sie:

Beschreibung

Der innovative Schwellenanker MULTI-MONTI-TimberConnect (MMS-TC) kombiniert das patentierte MULTI-MONTI-Betongewinde mit einem HECO-Holzgewinde. Die MMS-TC gewährleistet dadurch eine einfache und sichere Befestigung von Holzbauteilen auf Vollmauerwerk und Beton sowie Schwellen auf Beton. Der Schwellenanker besitzt alle Vorteile des Betongewindes: keine Drehmomentkontrolle, kleine Randabstände und keine Aushärtezeiten. Zudem verschafft er dem Verarbeiter einen besonderen Vorteil, denn der kleine Kopf der MMS-TC kann im Holz versenkt werden. Dadurch genügt ein Schraubanker für alle Holzdicken. Die MMS-TC wird in Durchsteckmontage mit Hilfe eines Setzwerkzeuges maschinell verschraubt. Die einmalige Kombination unterschiedlicher Bemessungskonzepte erlaubt deutlich höhere Zug- und Querlasten. Darüber hinaus sind die übertragbaren Zug- und Querlasten nicht von der Anbauteildicke abhängig.

Merkmale

Schraubendurchmesser 10 mm
Antrieb T-45
T-Drive
Schraubenlänge 130 mm
Gewindeform Betongewinde
Kopfform MMS-TC TimberConnect
Schraubenoberfläche verzinkt blau
Schraubenmaterial Stahl
Abmessungen 10x130 mm
Gewindelänge, lg 65 mm
Gewindelänge, lg2 55 mm
Kopfdurchmesser, dk 16,0 mm
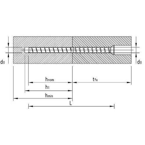
Bohr-Durchmesser, d0 8,0 mm
Anbauteildicke, tfix standard 60-200 mm
Einschraubtiefe, hnom standard 65 mm
Bohrlochtiefe, h standard 75 mm
Durchgangsloch im Anbauteil, df 8,0 mm
Min. Randabstand, cmin 50 mm
Mindestbauteildicke, hmin 115 mm
Allgemeine bauaufsichtliche Zulassung Z-21.1-1879
WhatsApp
Mail
Anrufen