Nur für Gewerbetreibende

Abbildung ähnlich
Menke

Menke Kammerprofil - 15mm - mit Nase - mit Schaumklebeband - 80x15mm - Weiß [75]

4055032607365 078284KPX5205
auf Anfrage
je 1 m
keine Verfügbarkeitsinformationen

Verpackungseinheiten

1 m
30 m

Verkaufsdaten

Mindestbestellmenge 1 m
Bestellschritt 1 m

Beschreibung

Suchst du ein bestimmtes Dekor für dein Profil?

Alle Dekore findest du im Menke Dekorfinder

Merkmale

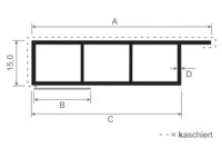
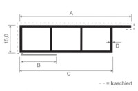
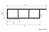
Querschnittmaß 80x15 mm
Farbe Kammerleiste Weiß [75]
Nase Ja
Schaumklebeband Ja
Profilform rechteckig
Länge Kammerleiste 6000 mm
WhatsApp
Mail
Anrufen