Menke Kammerprofil - 15mm - mit Nase - mit Schaumklebeband - 80x15mm - Mattex Db 703 [159]
4055032589654
078284K4701014
auf Anfrage
je 1 m
keine Verfügbarkeitsinformationen
Verpackungseinheiten
| 30 m |
Funktionen
Verkaufsdaten
| Mindestbestellmenge | 6 m |
| Bestellschritt | 6 m |
Beschreibung
Suchst du ein bestimmtes Dekor für dein Profil?
Alle Dekore findest du im Menke Dekorfinder
Merkmale
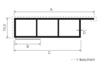
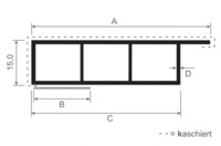
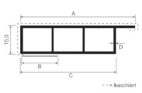
| Querschnittmaß | 80x15 mm |
| Farbe Kammerleiste | Mattex Db 703 [159] |
| Nase | Ja |
| Schaumklebeband | Ja |
| Profilform | rechteckig |
| Länge Kammerleiste | 6000 mm |