Nur für Gewerbetreibende

Abbildung ähnlich
Menke

Menke Kammerprofil - 15mm - mit Nase - mit Schaumklebeband - 80x15mm - Anthrazitgrau [57]

4055032063918 4055032063918 078284K1605
auf Anfrage
je 1 m
keine Verfügbarkeitsinformationen

Verpackungseinheiten

6 m
30 m

Verkaufsdaten

Mindestbestellmenge 6 m
Bestellschritt 6 m

Beschreibung

Suchst du ein bestimmtes Dekor für dein Profil?

Alle Dekore findest du im Menke Dekorfinder

Merkmale

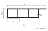
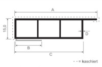
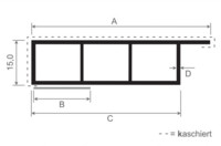
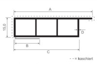
Querschnittmaß 80x15 mm
Farbe Kammerleiste Anthrazitgrau [57]
Nase Ja
Schaumklebeband Ja
Profilform rechteckig
Länge Kammerleiste 6000 mm
WhatsApp
Mail
Anrufen