Nur für Gewerbetreibende

Abbildung ähnlich
Menke

Menke Kammerprofil - 15mm - mit Nase - mit Schaumklebeband - 40x15mm - Papyrusweiß [133]

4055032358281 4055032358281 078274K4565058
auf Anfrage
je 1 m
keine Verfügbarkeitsinformationen

Verpackungseinheiten

6 m
30 m

Verkaufsdaten

Mindestbestellmenge 6 m
Bestellschritt 6 m

Beschreibung

Suchst du ein bestimmtes Dekor für dein Profil?

Alle Dekore findest du im Menke Dekorfinder

Merkmale

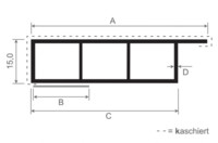
Querschnittmaß 40x15 mm
Farbe Kammerleiste Papyrusweiß [133]
Nase Ja
Schaumklebeband Ja
Profilform rechteckig
Länge Kammerleiste 6000 mm
WhatsApp
Mail
Anrufen