Nur für Gewerbetreibende

Abbildung ähnlich
Menke

Menke Kammerprofil - 15mm - mit Nase - mit Schaumklebeband - 30x15mm - Maronibraun [71]

4055032061273 4055032061273 078272K9905
auf Anfrage
je 1 m
keine Verfügbarkeitsinformationen

Verpackungseinheiten

6 m
60 m

Verkaufsdaten

Mindestbestellmenge 6 m
Bestellschritt 6 m

Beschreibung

Suchst du ein bestimmtes Dekor für dein Profil?

Alle Dekore findest du im Menke Dekorfinder

Merkmale

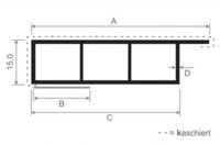
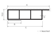
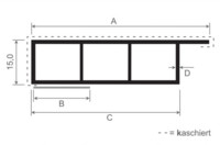
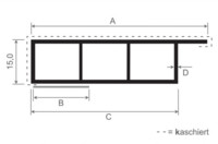
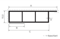
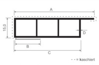
Querschnittmaß 30x15 mm
Farbe Kammerleiste Maronibraun [71]
Nase Ja
Schaumklebeband Ja
Profilform rechteckig
Länge Kammerleiste 6000 mm
WhatsApp
Mail
Anrufen