Nur für Gewerbetreibende

Abbildung ähnlich
Menke

Menke Kammerprofil - 15mm - mit Nase - mit Schaumklebeband - 30x15mm - Feuerrot [18]

4055032060931 078272K5405
auf Anfrage
je 1 m
keine Verfügbarkeitsinformationen

Verpackungseinheiten

1 m
60 m

Verkaufsdaten

Mindestbestellmenge 1 m
Bestellschritt 1 m

Beschreibung

Suchst du ein bestimmtes Dekor für dein Profil?

Alle Dekore findest du im Menke Dekorfinder

Merkmale

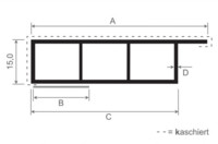
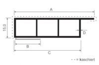
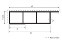
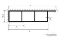
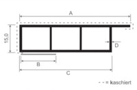
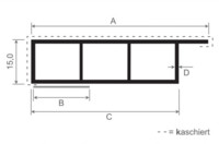
Querschnittmaß 30x15 mm
Farbe Kammerleiste Feuerrot [18]
Nase Ja
Schaumklebeband Ja
Profilform rechteckig
Länge Kammerleiste 6000 mm
WhatsApp
Mail
Anrufen