Nur für Gewerbetreibende

Abbildung ähnlich
Menke

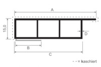
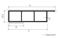
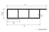
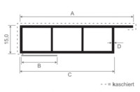
Menke Kammerprofil - 15mm - mit Nase - mit Schaumklebeband - 30x15mm - Crown Platin [3]

4055032636624 078272K1293001-195
auf Anfrage
je 1 m
keine Verfügbarkeitsinformationen

Verpackungseinheiten

60 m

Verkaufsdaten

Mindestbestellmenge 6 m
Bestellschritt 6 m

Beschreibung

Suchst du ein bestimmtes Dekor für dein Profil?

Alle Dekore findest du im Menke Dekorfinder

Merkmale

Querschnittmaß 30x15 mm
Farbe Kammerleiste Crown Platin [3]
Nase Ja
Schaumklebeband Ja
Profilform rechteckig
Länge Kammerleiste 6000 mm
WhatsApp
Mail
Anrufen