Menke Kammerprofil - 15mm - mit Nase - mit Schaumklebeband - 30x15mm - Anthrazitgrau [57]
KUN005-34
4055032059997
078272K1605
auf Anfrage
je 1 m
keine Verfügbarkeitsinformationen
Verpackungseinheiten
| 60 m |
Funktionen
Verkaufsdaten
| Mindestbestellmenge | 6 m |
| Bestellschritt | 6 m |
Zubehörempfehlung für Sie:
Beschreibung
Suchst du ein bestimmtes Dekor für dein Profil?
Alle Dekore findest du im Menke Dekorfinder
Merkmale
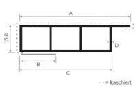
| Querschnittmaß | 30x15 mm |
| Farbe Kammerleiste | Anthrazitgrau [57] |
| Nase | Ja |
| Schaumklebeband | Ja |
| Profilform | rechteckig |
| Länge Kammerleiste | 6000 mm |