Nur für Gewerbetreibende

Abbildung ähnlich
Menke

Menke Kammerprofil - 15mm - mit Nase - mit Schaumklebeband - 17x15mm - Macoré [26]

4055032059010 4055032059010 078271K3162002
auf Anfrage
je 1 m
keine Verfügbarkeitsinformationen

Verpackungseinheiten

60 m

Verkaufsdaten

Mindestbestellmenge 6 m
Bestellschritt 6 m

Beschreibung

Suchst du ein bestimmtes Dekor für dein Profil?

Alle Dekore findest du im Menke Dekorfinder

Merkmale

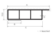
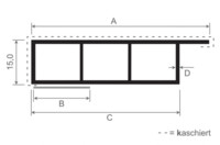
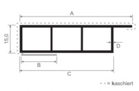
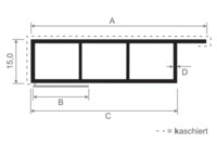
Querschnittmaß 17x15 mm
Farbe Kammerleiste Macoré [26]
Nase Ja
Schaumklebeband Ja
Profilform rechteckig
Länge Kammerleiste 6000 mm
WhatsApp
Mail
Anrufen