Nur für Gewerbetreibende

Menke Fensterverleistung

Das Logo der Marke Menke

Fensterverleistung für Profis

Entdecke unsere große Auswahl an hochwertigen Fensterleisten der Marke Menke.

  • Lange Erfahrung
    Seit mehr als 50 Jahren überzeugt Menke mit ihrer Erfahrung im Bereich von Kunststoffprofilen für Fenster.
  • Höchste Qualität
    Die Leisten werden nur in höchster Qualität abgeliefert und das natürlich "made in Germany".
  • Zahlreiche Farben
    Menke bietet für ihre Leisten bis zu 200 verschiedene Dekore an - passend für jeden Fall!

Kammerprofile

Das Kammerprofil wird im Innenbereich an das Mauerwerk angelegt und auf dem Blendrahmen verklebt.
Wir bieten verschiedene Varianten an, z.B.:

  • 7/15 mm Profilstärke
  • mit/ohne Nase
  • mit/ohne Schaumklebeband

Weitere Informationen:

  • Menke verwendet für Kammerprofile hochwertige Schaumklebebänder. Diese sind am Kunststoffprofil aufgeklebt.
  • Reinige die Klebefläche des Profils mit geeignetem Reiniger für eine glatte, saubere, trockene, staub- und fettfreie Fläche.
  • Optimale Verklebungstemperatur zwischen 20 °C und 30 °C.
  • Die Maximalklebekraft wird nach 24 Stunden erreicht.
  • Weiße Profile mit Schaumklebeband können im Innen- sowie Außenbereich eingesetzt werden
  • Kaschierte Profile bitte nur im Innenbereich einsetzen
  • Im Außenbereich empfehlen wir klipsbare Anschlussprofile.

Anschlussprofil für die äußere Abdichtung

Menke

Menke Anschlussprofil - 6,0m - mit Nase - Klipsbar - 15x30mm - Weiß 9016 KUN025-20

keine Verfügbarkeitsinformationen
auf Anfrage
je 1 m

Merkmale

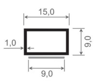
Querschnittmaß 15x30 mm
Farbe Kammerleiste Weiß 9016
Anwendungsbereich Kammerleiste Innen- und Außenbereich
Länge Kammerleiste 6000 mm
Schaumklebeband Nein
Nase Ja
Weichlippe Nein
Dichtband Nein

Verkaufsdaten

Mindestbestellmenge 60 m
Bestellschritt 60 m

Verpackungseinheiten

60 m
Menke

Menke Anschlussprofil - 6,0m - mit Nase - Klipsbar - 15x40mm - Weiß 9016 KUN025-22

keine Verfügbarkeitsinformationen
auf Anfrage
je 1 m

Merkmale

udf_NMMARKETINGCLAIM-1.0 2
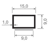
Querschnittmaß 15x40 mm
Farbe Kammerleiste Weiß 9016
Anwendungsbereich Kammerleiste Innen- und Außenbereich
Länge Kammerleiste 6000 mm
Schaumklebeband Nein
Nase Ja
Weichlippe Nein
Dichtband Nein

Verkaufsdaten

Mindestbestellmenge 60 m
Bestellschritt 60 m

Verpackungseinheiten

60 m

Anschlussprofile mit Dichtband

Alternativ bieten wir auch Anschlussprofile mit hochwertigen illbruck-Dichtbändern an.

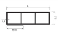
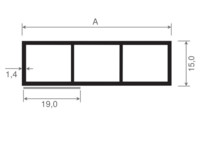
Flachprofile

Das Flachprofil wird im Innenbereich an das Mauerwerk angelegt und auf dem Blendrahmen verklebt.
Wir bieten verschiedene Varianten an, z.B.:

  • 2/2,5/3 mm Profilstärke
  • mit/ohne Weichlippe
  • mit/ohne Schaumklebeband

MENKE DEKORFINDER

Finde das passende Dekor für deine Kunststoffleisten. Wähle aus über 200 Dekoren aus!

ZUM DEKORFINDER

Passendes Zubehör

WhatsApp
Mail
Anrufen